AMÉNAGEMENT D'UN SUPERMARCHÉ ASIATIQUE

AMÉNAGEMENT D'UN SUPERMARCHÉ ASIATIQUE, Lille, ATELIER VPA
20-11-2025

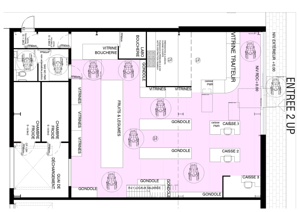
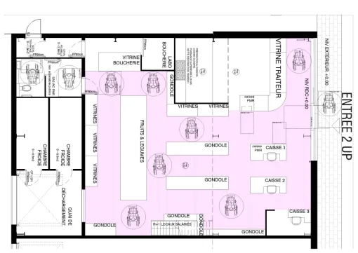
Aménagement d'un supermarché asiatique à LOMME

Cellule commerciale de 292m2 comprenant une mezzanine

Vous souhaitant une agréable visite, si vous avez besoin d'un complément d'information concernant votre projet d'aménagement d'un ERP à LOMME prenez contact dès à présent.